La Provincia ha concluso la procedura di gara per l’assegnazione dell’appalto relativo alla realizzazione del nuovo polo scolastico che sorgerà nel piazzale Harris a Portoferraio.
I lavori sono stati aggiudicati in via definitiva all’impresa Omnia Servitia Srl, di Mozzagrogna, in provincia di Chieti, unica partecipante alla gara
.
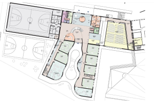
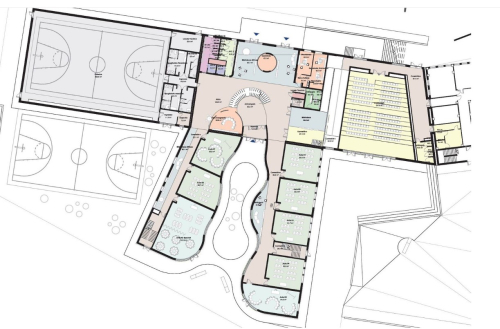
L’offerta presentata prevede un ribasso del 17,18% sulla base d’asta, per importo complessivo di 13.337.475 euro, suddivisi tra il primo lotto d’intervento, palestra e campo polivalente all’aperto, pari a 3.386.098 euro e il secondo lotto di lavori, edificio scolastico (aule, laboratori, uffici amministrativi e spazi comuni), di 11.752.179 euro.
La gara si è conclusa entro i termini previsti dallo scadenzario del Pnrr, e tenuto conto che si tratta di un’aggiudicazione definitiva, la consegna dei lavori potrà avvenire anche con ampio anticipo rispetto alla successiva scadenza del 15 novembre.
“L’aggiudicazione dell’appalto – sottolinea il vice presidente Pietro Caruso – pone una vera e propria pietra miliare su un progetto che ha visto la Provincia lavorare con grande determinazione. A questo proposito vorrei ringraziare gli uffici provinciali, dai responsabili a tutto il personale dei vari servizi, perché con volontà e impegno hanno superato un cammino costellato di ostacoli ogni volta diversi, primo tra tutti il reperimento del finanziamento delle opere, poi la corsa per rispettare i termini del Pnrr. Certo – aggiunge Caruso – ora ci aspetta un nuovo cammino, ancora più difficile, ma possiamo dire che l'Amministrazione Provinciale ha rispettato l'impegno preso con gli studenti, prima di tutto, e con il territorio elbano, dando concretezza ad un progetto che porterà grande qualità nelle strutture scolastiche superiori dell’isola”.
Soddisfazione per la conclusione della procedura di gara è stata espressa anche da Andrea Solforetti, consigliere provinciale con delega alle questioni elbane:”Il progetto rappresenta un duplice investimento per il futuro del territorio perché, da un lato, la nuova scuola sarà un vero e proprio polo didattico e culturale a servizio dell’isola, dall'altro lato avremo un’opera concepita con criteri di sostenibilità ambientale che guardano, in particolare, al risparmio energetico”.






