“Siamo estremamente felici della notizia dell’affidamento dei lavori da parte della provincia di Livorno per la realizzazione del nuovo polo scolastico. Si entra ora nella fase operativa che dovrà portare alla concretizzazione di un progetto di grandissimo rilievo non solo per Portoferraio ma per l’intera isola d’Elba”.
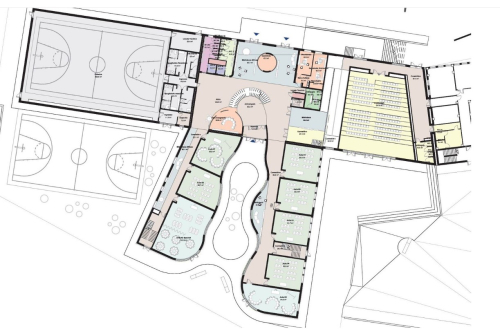
Il sindaco di Portoferraio Angelo Zini commenta così la notizia dell’affidamento dei lavori per la costruzione del nuovo plesso scolastico destinato ai licei cittadini che sorgerà nella zona degli ex Macelli.
“I nostri impegni passati e futuri - spiega il sindaco Zini - sono quelli che abbiamo concordato con la provincia di Livorno nel momento in cui l’ operazione è partita. Abbiamo messo a disposizione l’area attraverso un atto, definito tecnicamente concessione del diritto di superficie, che ha permesso alla provincia di avere il titolo per presentare la domanda di finanziamento anche sul Pnrr. Adesso si tratta di formalizzarlo. Questo tipo di impostazione ha già ricevuto il via libera del consiglio comunale e del consiglio provinciale. Il prossimo passaggio è il rogito notarile riguardo il quale sono in corso le procedure per arrivare alla sottoscrizione. Dal punto di vista pratico l’altro impegno che abbiamo come Comune è quello di rendere libera l’area da persone e cose. Attualmente è presente un deposito di attrezzature in parte comunali (scuolabus) ed in parte di una cooperativa affidataria anche di servizi per il Comune che è stata da tempo informata della necessità di trasferimento e so per certo che lo effettuerà in tempi brevi. Ci sono poi i locali occupati dal servizio veterinario dell’Asl riguardo i quali siamo d’accordo da tempo con l’Asl per il suo trasferimento in una sede alternativa che è stata già individuata trovata e si tratta ora di renderla praticabile .E’ presente, infine, un’abitazione occupata da tanti anni da una famiglia. A tal proposito si è operato con l’inserimento della stessa nella graduatoria dell’emergenza abitativa in modo tale da avere la possibilità di ricollocarla in un altro alloggio di proprietà comunale. Tutto questo dovrà avvenire nei tempi che la provincia ci ha indicato per consegnare il cantiere alla ditta vincitrice dell’appalto”.
Per quanto riguarda il riutilizzo degli immobili che verranno lasciati liberi una volta avvenuto il trasferimento dei licei nel nuovo plesso scolastico è ancora presto per fare delle ipotesi.
“I locali ex ragioneria attuale sede del liceo delle scienze umane, in salita Napoleone – spiega il sindaco - credo abbiano una destinazione naturale che è quella di completare il centro culturale De Laugier. Con tempi e modalità da stabilire credo quindi debbano diventare un’appendice importante di collegamento e di ampliamento dei servizi culturali della città. E’, invece, più complicato, ma anche suggestivo, trovare una soluzione per un nuovo utilizzo dello storico stabile in via Carlo Bini perché insiste in una zona molto più particolare e più sensibile. Stiamo valutando diverse ipotesi che, secondo me, devono ricollegarsi ad un progetto complessivo di rivalutazione e rigenerazione di tutta l’area del Grigolo”.






